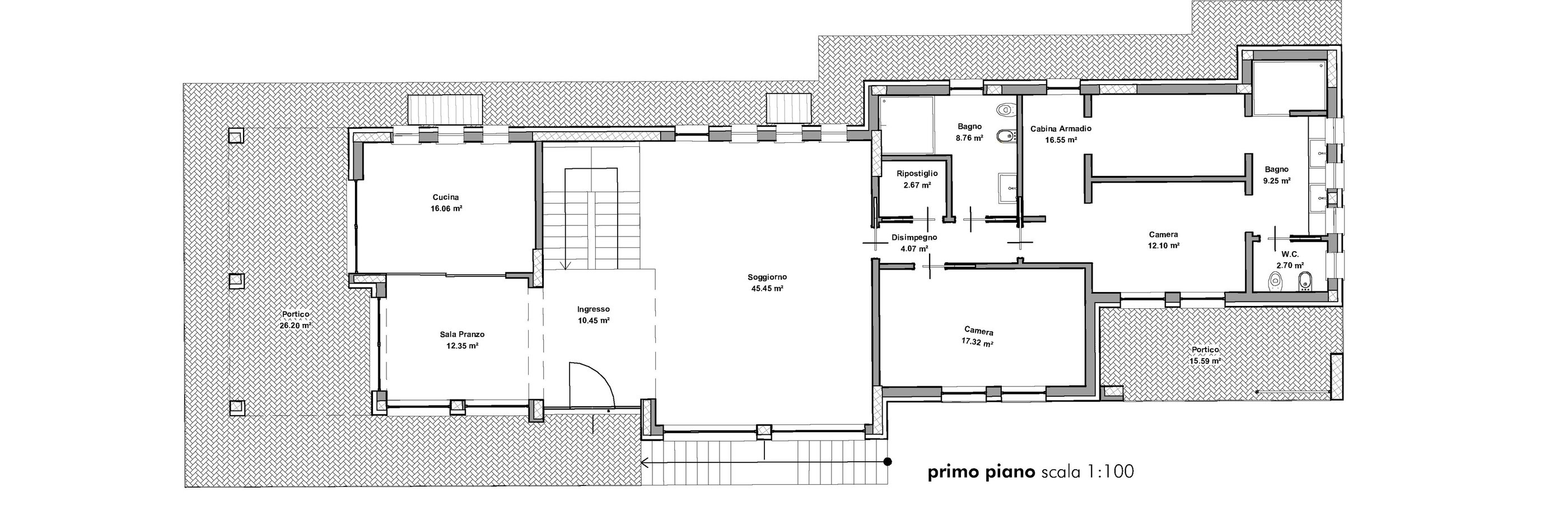
Villa SP
Realizzazione villa panoramica sul lago
Predore (BG)














Contatti
Email: studiopasinetti@libero.it
Cenate Sotto (BG)
Cell: 335237240
Via Monsignor Testa 5; 24069
Orari: Lun-Ven 9-18
Tel: 0354250942
Sabato su appuntamento


Geom. Giacomo Pasinetti
Arch. Francesco Pasinetti
